微信登录,快人一步
只需一步,快速开始
使用道具 举报
布衣 发表于 2009-2-26 19:21 登录/注册后可看大图 请提供您院消毒供应中心的改建图纸,大家好帮您参谋啊! 先上传一张上海瑞金医院消毒供应中心平面图,请 ...
天使飞过 发表于 2010-11-6 14:16 登录/注册后可看大图 急切求助:我是一家二级医院,想新建一标准化消毒供应中心,领导同意了,但要求我设计一标准的消毒供应中心 ...
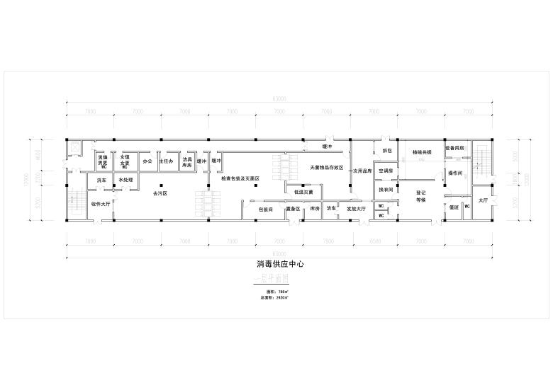
西北耗子王 发表于 2011-12-16 01:36 登录/注册后可看大图 这是我院新建消毒供应中心设计图纸,上传与此,希望得到大家的帮助,帮忙审阅一下,特此致谢!
樱桃公主 发表于 2013-11-9 09:20 登录/注册后可看大图 我们医院也让我自己设计,480平,还要对设计负责,郁闷啊,个人认为还是应该找专业公司或院感专家设计,这 ...
樱桃公主 发表于 2013-11-9 09:28 登录/注册后可看大图 其实我们供应中心2011年刚改造完,仍有不合理的地方。那时我还没调来,明年盖新楼,院领导要我对设计负责 ...
舟舟 发表于 2009-10-28 09:51 我院新建供应室,图纸是厂家设计的,请大家帮忙看看,哪些需要完善。
本版积分规则 发表回复 回帖并转播 回帖后跳转到最后一页
查看 »